Cabin Compound
Asheville, NC
Completed 2021
2,800 SF
This contemporary mountain retreat is tucked away on a secluded Appalachian hillside. Comprised of one Main Lodge and three sleeping cabins, the buildings are oriented toward mountain views while maintaining privacy between cabins.
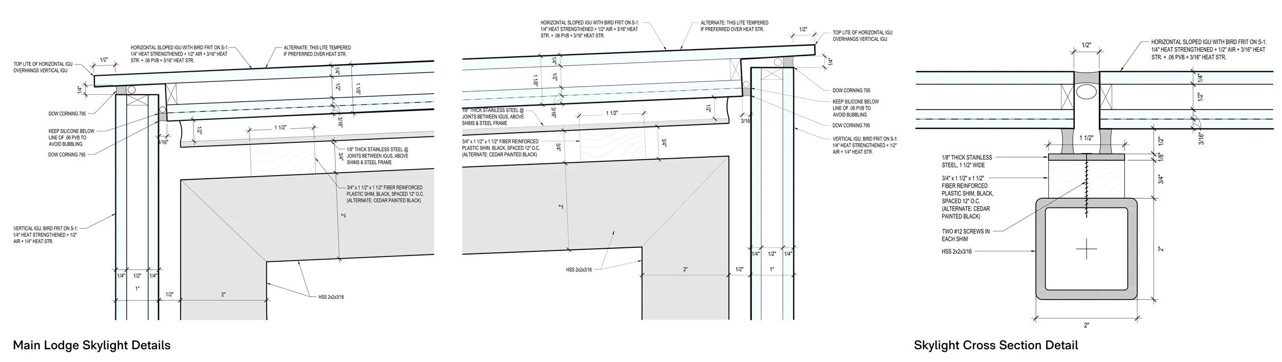
Sited on very steep terrain, each building is a hybrid steel-and-wood structure that floats above the landscape on steel piers. The cabins connect to the surrounding environment with charred cypress exterior cladding and maple plywood interior walls. Each building features large windows and skylights to bring natural daylight deep into each space.
Completed with Studio Gang as Project Leader.
The living room, dining room, and kitchen are three distinct yet visually connected spaces in the Main Lodge. It also includes a laundry room, powder room, storage, and two entries.